id:ZV+ZVF NOVO
Цена:
|
Стоимость душевой перегородки расчитывается по индивидуальным размерам, |
Введите размеры проема:
Ширина, м:
Высота стекла, м:
| Выберите цвет стекла: | Выберите цвет фурнитуры: |
|
|
|
Выберите услуги:
Итоговая цена...... 46544 руб
Шторка на ванну ZV+ZVF NOVO
Описание
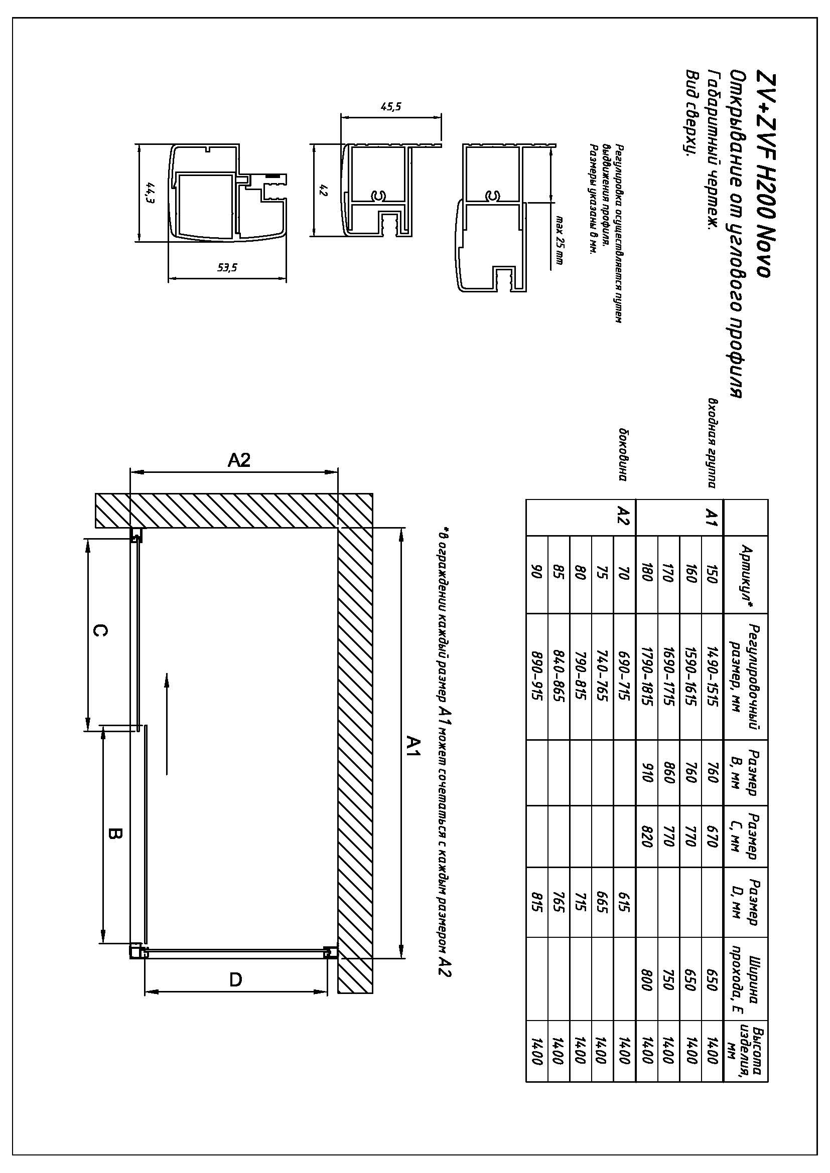
Душевая шторка на ванну с раздвижной дверью ZV+ZVF NOVO с возможностью регулировки ширины и глубины шторки до 25мм.Стекло закалённое 6мм. Высота шторки 1400мм
Характеристики
- Вид товара Шторка на ванну
- Конфигурация душевой на ванну
- Форма душевой прямоугольная
- Тип двери раздвижная
- Артикул ZV+ZVF NOVO
- Серия ZV+ZVF NOVO
- Толщина стекла 6мм
- Открывание двери вдоль стены
- Наличие доводчика без доводчика
- Фиксация двери без фиксации
- Приподъём двери при открывании без приподъёма
Файлы
Популярные товары







































